rss
Vente en Tunisie > Villa kmar à Hammamet
Vente :: Villa kmar
Catégorie Vente > Maisons à Hammamet
Localisation Tunisie > Hammamet > Hammamet
Adresse 58,av.koweit imm.la tour bleue 8050 hammamet
Surface 200 m² 
Prix 680 000 Dinar Tunisien (TND)  Convertir
Texte

villa kmar
yasmine hammamet
à vendre villa inachevée bien située dans un quartier résidentiel en zone touristique à 200 m d’une très belle plage
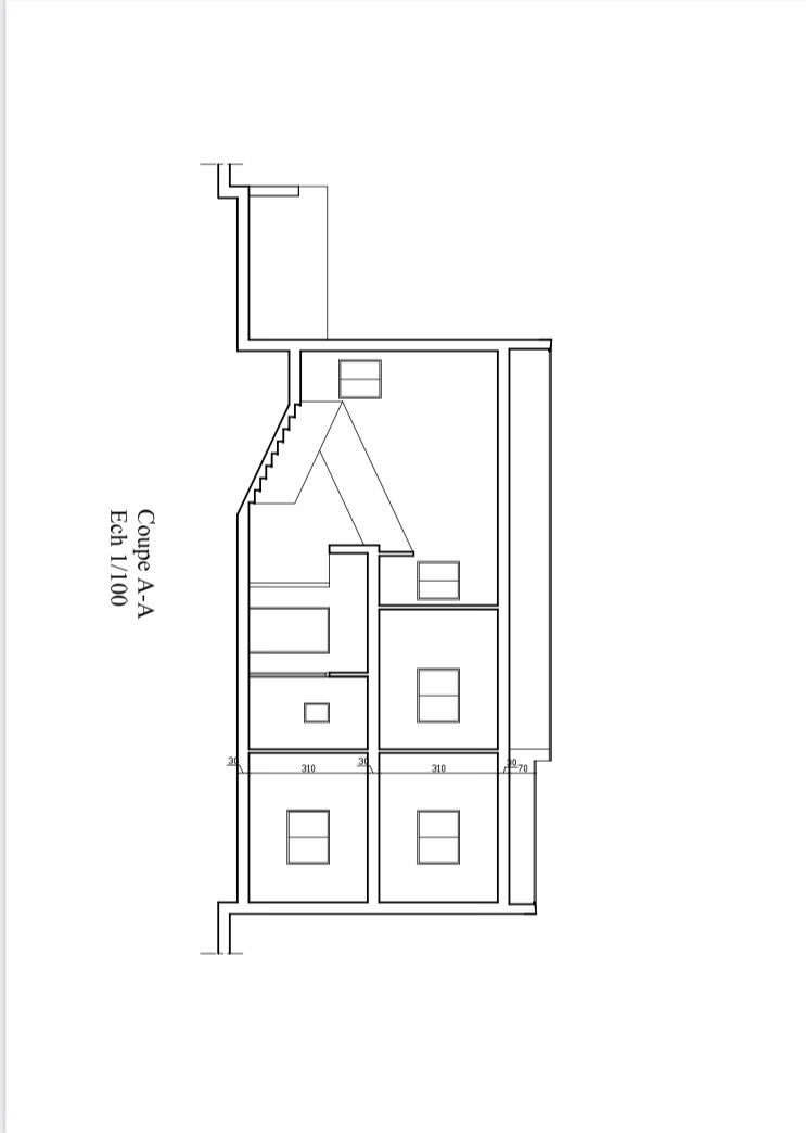
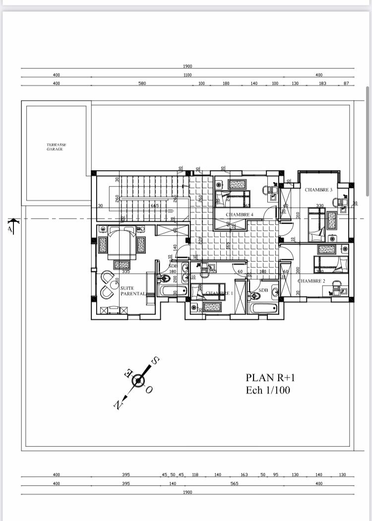
édifiée sur deux niveaux se compose en rez de chaussée d’un grand salon salle à manger , cuisine indépendante, salle d’eau d’appoint
en étage une suite parentale avec salle de bain privée , 3 chambres à couchers et une salle se bain grande terrasse panoramique vue sur mer , beau jardin et possibilité de faire une magnifique piscine , un studio composé de 2 pièces.
surface habitable 280 m2 couvert , superficie terrain 700 m2 entièrement clôturé..
prix 680 000dt

Liens Ventes immobilieres en Tunisie 
Vente immobilier Hammamet 
Ventes immobilier à Hammamet
Date Insertion : 03/07/2024  Date Modification : 14/04/2026  Date Expiration : 14/07/2026 
Contact
Téléphone +216 22 308 939 Portable+216 20 308 200 Fax+216 72 266 296  
Nom     Répondre
Les Photos
Hammamet Hammamet Vente Maisons Villa kmar
Hammamet Hammamet Vente Maisons Villa kmar
Hammamet Hammamet Vente Maisons Villa kmar
Hammamet Hammamet Vente Maisons Villa kmar
Hammamet Hammamet Vente Maisons Villa kmar
  Tunisie Hammamet Hammamet Vente Maisons Villa kmar  
Notre portail d'immobilier en Tunisie vous propose des centaines d'annonces immobilières de maison en Tunisie. Du studio à l'appartement familial.

Des terrain et des appartements à vendre et à acheter en Tunisie sont présentées sur le site par région, vente de maison à Hammamet avec de nombreuses photos et peuvent être recherchées par zones, niveau de standing. Chaque logement à acheter ou à vendre en Tunisie, a été ajouté par son propriétaire et mis en valeur sur notre site de vente et achat en immobilier. Vente maison et appartements à Hammamet de particuliers et de professionnels.
tunisie-vente.com © est membre du réseaux www.tunisie-annonce.com   

vente immobilier tunisie, immobilier tunisie, ventes en tunisie immobilier, Tunisie Ventes, vente de maison en tunisie, a vendre une maison en tunisie, je vends ma maison, passer une annonce de vente , vente immobilier, location, vente , achat, maison, vente d'appartement, louer, vendre, acheter, location, locations , immobilier, maison, ventes d'appartement en tunisie, immobiliet en tunisie, annonces de immobilier avec photos, site tunisien de l'immobilier en tunisie avec photo.