rss
Vente en Tunisie > Local commecial nouvelle madina3 à Nouvelle Medina
Vente :: Local commecial nouvelle madina3
Catégorie Vente > Surfaces à Nouvelle Medina
Localisation Tunisie > Nouvelle Medina > Nouvelle Medina
Adresse résidence maya nouvelle madina 3
Surface 38 m² 
Prix 100 000 Dinar Tunisien (TND)  Convertir
Texte

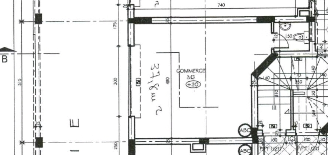
à vendre, local commercial neuf, jamais exploité, situé dans la résidence maya à nouvelle médina, dans un quartier calme et résidentiel.

le local fait 37,8 m², avec une façade de 5 mètres donnant sur la rue et une galerie à l’avant, offrant un espace supplémentaire exploitable.

✅ atouts :

emplacement stratégique, facilement accessible

immeuble moderne et bien entretenu.

idéal pour toute activité commerciale ou professionnelle.

une belle opportunité d’investissement ou pour démarrer votre projet.

Liens Ventes immobilieres en Tunisie 
Vente immobilier Nouvelle Medina 
Ventes immobilier à Nouvelle Medina
Date Insertion : 04/10/2025  Date Modification : 19/10/2025  Date Expiration : 31/10/2025 
Contact
Portable+216 22 730 683  
Nom     Répondre
Les Photos
Nouvelle Medina Nouvelle Medina Vente Surfaces Local commecial nouvelle madina3
Nouvelle Medina Nouvelle Medina Vente Surfaces Local commecial nouvelle madina3
Nouvelle Medina Nouvelle Medina Vente Surfaces Local commecial nouvelle madina3
Nouvelle Medina Nouvelle Medina Vente Surfaces Local commecial nouvelle madina3
Nouvelle Medina Nouvelle Medina Vente Surfaces Local commecial nouvelle madina3
  Tunisie Nouvelle Medina Nouvelle Medina Vente Surfaces Local commecial nouvelle madina3  
Notre portail d'immobilier en Tunisie vous propose des centaines d'annonces immobilières de maison en Tunisie. Du studio à l'appartement familial.

Des terrain et des appartements à vendre et à acheter en Tunisie sont présentées sur le site par région, vente de maison à Nouvelle Medina avec de nombreuses photos et peuvent être recherchées par zones, niveau de standing. Chaque logement à acheter ou à vendre en Tunisie, a été ajouté par son propriétaire et mis en valeur sur notre site de vente et achat en immobilier. Vente maison et appartements à Nouvelle Medina de particuliers et de professionnels.
tunisie-vente.com © est membre du réseaux www.tunisie-annonce.com   

vente immobilier tunisie, immobilier tunisie, ventes en tunisie immobilier, Tunisie Ventes, vente de maison en tunisie, a vendre une maison en tunisie, je vends ma maison, passer une annonce de vente , vente immobilier, location, vente , achat, maison, vente d'appartement, louer, vendre, acheter, location, locations , immobilier, maison, ventes d'appartement en tunisie, immobiliet en tunisie, annonces de immobilier avec photos, site tunisien de l'immobilier en tunisie avec photo.