rss
Vente en Tunisie > Appartement s1 à la soukra à La Soukra
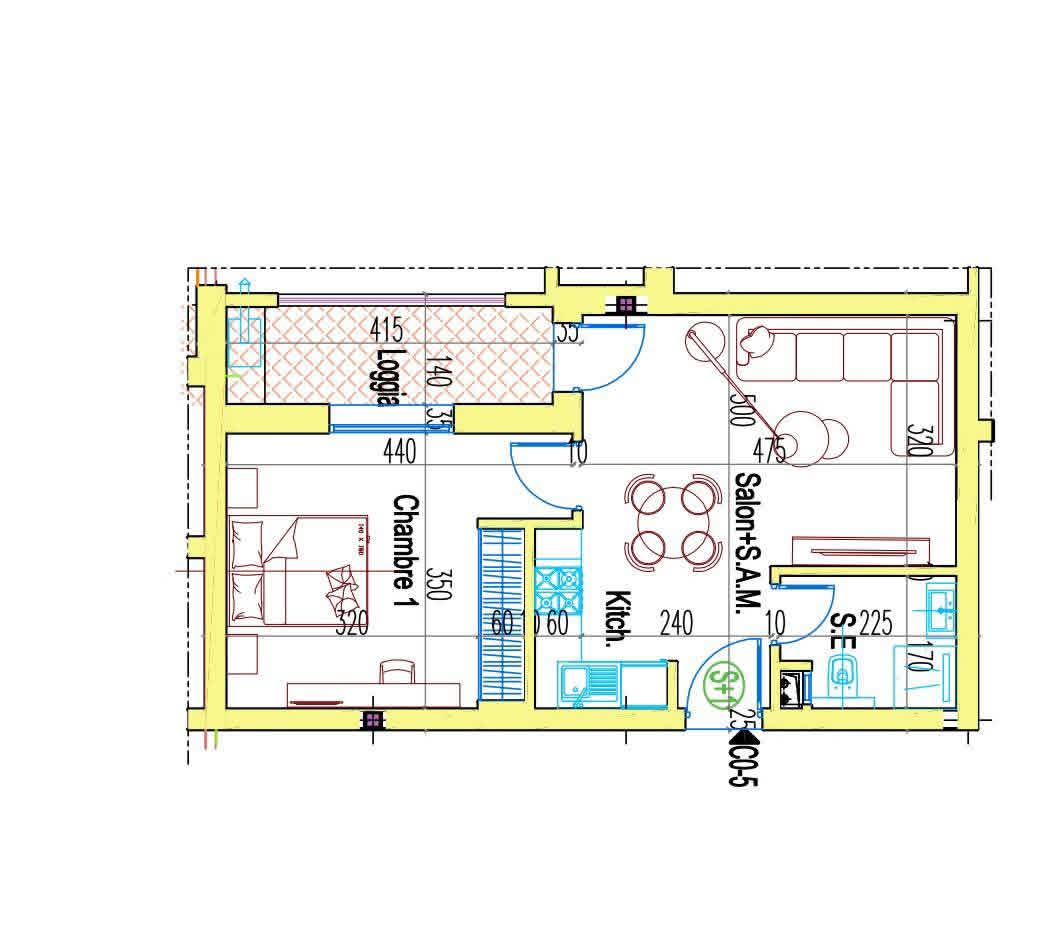
Vente :: Appartement s1 à la soukra
Catégorie Vente > Appart. 2 pièces à La Soukra
Localisation Tunisie > La Soukra > La Soukra
Adresse la soukra
Surface 5 811 m² 
Prix 252 000 Dinar Tunisien (TND)  Convertir
Texte

ref336a
by louati immo met à la vente un appartement s1 encours de construction à la soukra il se compose d'un
salon
balcon
kitchenette bien équipé plaque , hotte et four
climatisation
parking sous sol
pour plus de détails contacter notre conseiller en immobilier au 93912699

Liens Ventes immobilieres en Tunisie 
Vente immobilier La Soukra 
Ventes immobilier à La Soukra
Date Insertion : 04/02/2026  Date Modification : 04/02/2026  Date Expiration : 06/05/2026 
Contact
Téléphone 93912699 Portable93912699 Fax93912699  
Nom     Répondre
Les Photos
La Soukra La Soukra Vente Appart. 2 pièces Appartement s1 à la soukra
La Soukra La Soukra Vente Appart. 2 pièces Appartement s1 à la soukra
  Tunisie La Soukra La Soukra Vente Appart. 2 pièces Appartement s1 à la soukra  
Notre portail d'immobilier en Tunisie vous propose des centaines d'annonces immobilières de maison en Tunisie. Du studio à l'appartement familial.

Des terrain et des appartements à vendre et à acheter en Tunisie sont présentées sur le site par région, vente de maison à La Soukra avec de nombreuses photos et peuvent être recherchées par zones, niveau de standing. Chaque logement à acheter ou à vendre en Tunisie, a été ajouté par son propriétaire et mis en valeur sur notre site de vente et achat en immobilier. Vente maison et appartements à La Soukra de particuliers et de professionnels.
tunisie-vente.com © est membre du réseaux www.tunisie-annonce.com   

vente immobilier tunisie, immobilier tunisie, ventes en tunisie immobilier, Tunisie Ventes, vente de maison en tunisie, a vendre une maison en tunisie, je vends ma maison, passer une annonce de vente , vente immobilier, location, vente , achat, maison, vente d'appartement, louer, vendre, acheter, location, locations , immobilier, maison, ventes d'appartement en tunisie, immobiliet en tunisie, annonces de immobilier avec photos, site tunisien de l'immobilier en tunisie avec photo.